FIRENZE LIBERTA' Hotel in attività
Rif.C12-18 | 450 mq | camere: 6 | bagni: 7 | € 2.850.000
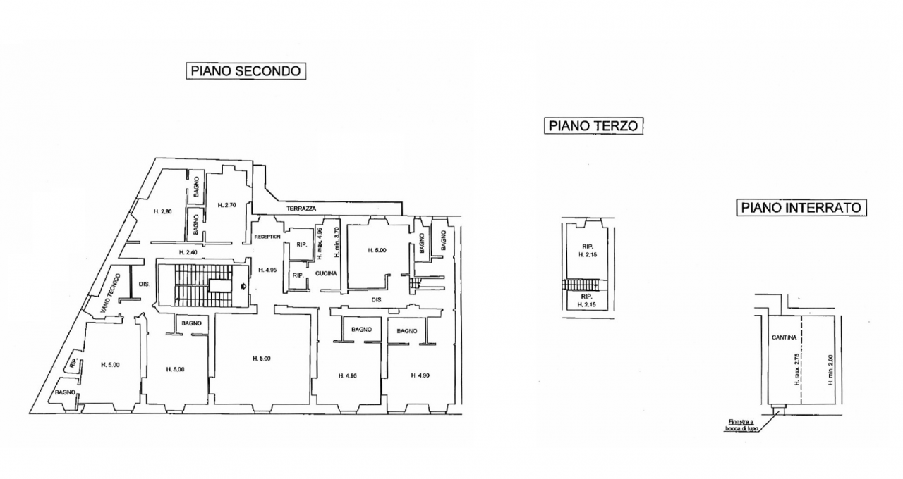
Descrizione
FIRENZE LIBERTA’ – SAN MARCO PRESSI Ottimamente ubicato in posizione strategica, a 100 metri dalla tramvia e dal parcheggio comunale, proponiamo in vendita immobile di oltre 450 mq, attualmente elegante hotel in attività. L’immobile, posto al 2° piano di palazzo storico dell'Ottocento servito da ascensore, si compone di: ingresso reception, 7 ampie camere matrimoniali (elegantemente arredate, con affreschi originali a vista e bagno en suite), splendido salone doppio per accoglienza e sala colazioni, ulteriore servizio, cucina attrezzata, un ampio balcone e cantina di 30 mq usata come magazzino. La vendita include mura e attività.
Dettagli
| Prezzo: | € 2.850.000 |
| Spese condominiali: | € 300 |
| Metri quadri: | 450 mq |
| bagni: | 8 |
| camere: | 7 |
| Classe energetica: |
I.P.E. 145,97 kWh/m2 anno |
| numero portoni: | 1 |
| piano numero: | 2 |
| poggioli/balconi: | 2 |
| ripostigli: | 2 |
| totale piani: | 4 |
Ambienti: | |
Comfort: | |
Livelli: | |
| Comune: | Firenze |
| Indirizzo: | VIALE MATTEOTTI |



















